
閥體材質:不銹鋼304、316、316L、鑄鋼、防腐塑料
動作方式:直動式、分布直動式、先導式
通徑范圍:DN1~DN800mm
控制方式:常開、常閉、自保持
電源電壓:AC110V、AC220V、AC380V、DC12V、DC24V、DC36V
適用介質:天然氣、氫氣、酒精等易燃液體或氣體
壓力范圍:0-0.1MPa、0.6MPa、1.6MPa、2.5MPa~100MPa
介質溫度:-196℃、-100℃、-40℃,0-80℃、+200℃、3500℃、+400℃
接線方式:接線座式;引線式 防爆等級:ExdIICT4~ExdIICT6
連接方式:內螺紋、外螺紋、法蘭、焊接活接
不銹鋼防爆電磁閥作用:
隔爆型防爆電磁閥的作用其線圈外殼不但具有隔爆作用,而且對氣體爆-炸能量傳遞具有阻滯作用,安全性能更高,不銹鋼防爆電磁閥是特別設計適用于傳輸易燃易爆介質或專用于爆-炸性危險場所的特殊防爆電磁閥系列產品,不同的環境和流體應選擇不同防爆等級的電磁閥。
不銹鋼防爆電磁閥有304、316、316L等材質品牌供應商-上海臺銘,全不銹鋼電磁閥齊全供應,防爆電磁閥是通過接收電控信號(12V 24V 220V等)后實現自動打開或關閉,以此達到對管道中的流體介質的通斷自動控制,在結構上有直動式、分步直動式、先導式等,根據應用場合的不同有常閉式、常開式,如需長時間通電可選低溫線圈或者自保持節電型。
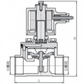
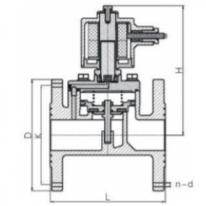
不銹鋼防爆電磁閥外形尺寸:


| 公稱通徑 | 內螺紋 | 法蘭(單位mm) | ||||||||
| G螺紋 | L | H | 重量KG | L | H | D | K | n-d | 重量KG | |
| DN15 | G1/2 | 70 | 150 | 2.3 | 100 | 150 | φ95 | φ65 | 4-φ14 | 3.5 |
| DN20 | G3/4 | 85 | 160 | 2.5 | 110 | 155 | φ105 | φ75 | 4-φ14 | 4 |
| DN25 | G1 | 95 | 165 | 2.8 | 125 | 165 | φ115 | φ85 | 4-φ14 | 5 |
| DN32 | G1-1/4 | 115 | 180 | 3.5 | 140 | 170 | φ135 | φ100 | 4-φ18 | 6.3 |
| DN40 | G1-1/2 | 130 | 190 | 4.3 | 150 | 180 | φ145 | φ110 | 4-φ18 | 7.5 |
| DN50 | G2 | 145 | 205 | 4.5 | 165 | 185 | φ160 | φ125 | 4-φ18 | 9 |
| DN65 | 200 | 250 | φ180 | φ145 | 4-φ18 | 16 | ||||
| DN80 | 240 | 270 | φ190 | φ160 | 8-φ18 | 21 | ||||
| DN100 | 280 | 305 | φ215 | φ180 | 8-φ18 | 31 | ||||
| DN125 | 310 | 305 | φ145 | φ210 | 8-φ18 | 41 | ||||
| DN150 | 460 | 360 | φ280 | φ240 | 8-φ23 | 56 | ||||
| DN200 | 600 | 450 | φ335 | φ295 | 12-φ23 | 91 | ||||
| DN250 | 650 | φ405 | φ355 | 12-φ26 | ||||||
| DN300 | 750 | φ460 | φ410 | 12-φ26 | ||||||
| DN350 | 850 | φ520 | φ470 | 16-φ26 | ||||||
| DN400 | 950 | φ580 | φ525 | 16-φ30 | ||||||
| DN500 | 1150 | φ715 | φ650 | 20-φ33 | ||||||
不銹鋼防爆電磁閥產品特點:
外觀精美;活塞結構;性能穩定;定制線圈,不易燒毀;適應在爆-炸危險場所使用。
1、現場可自由安裝;動作響應迅速;采用原裝密封材料,壽命是同類產品十倍
2、數控機床加工,確保電磁閥的精度與可靠性
3、采用塑封線圈,提高閥的可靠性并能防水、防潮
4、液體、氣體、油品可混合使用,提高閥的使用范圍
上海臺銘防爆電磁閥有多種連接如內螺紋、外螺紋(英制、美標、公制等)法蘭(機械部、化工部、美標等)焊接(活接頭)卡套、快裝等,根據流體介質的不同有走水、空氣、燃氣、蒸汽以及耐各種強酸堿腐蝕的全不銹鋼電磁閥。

接線座式防爆電磁閥簡介: 接線座式防爆電磁閥適用于易燃易爆介質,以及

不銹鋼高壓防爆電磁閥是用電磁控制的工業設備,是用來控制流體的自動化

碳鋼防爆電磁閥是把設備可能點燃易爆性氣體混合物的部件全部封閉在一個

法蘭不銹鋼高壓防爆電磁閥配置帶防爆接線裝置的隔爆型電磁線圈及配置帶

直動式防爆電磁閥一般是用于小口徑,低壓力的管道,直動式結構的電磁閥